Администрация Партизанского района г.Минска
приглашает принять участие
В ПРОВЕДЕНИИ ОБЩЕСТВЕННОГО ОБСУЖДЕНИЯ
по объекту «Градостроительный проект детального планирования территории в границах ул. Франциска Скорины – Минская кольцевая автомобильная дорога «Минск-Москва» – ул. Подлесная (внесение изменений)».
Общественное обсуждение проводится с 18 марта 2024 г. по 1 апреля 2024 г.
Заказчик на разработку проекта детального планирования – комитет архитектуры и градостроительства Мингорисполкома, разработчик проекта –
УП «Минскградо».
Организатором общественного обсуждения по объекту выступает администрация Партизанского района г.Минска, почтовый адрес: 220088,
ул. Захарова, 53 г.Минск, тел. /факс 360 60 13, part.gov.by, электронный адрес для направления замечаний и (или) предложений по объекту общественного обсуждения:
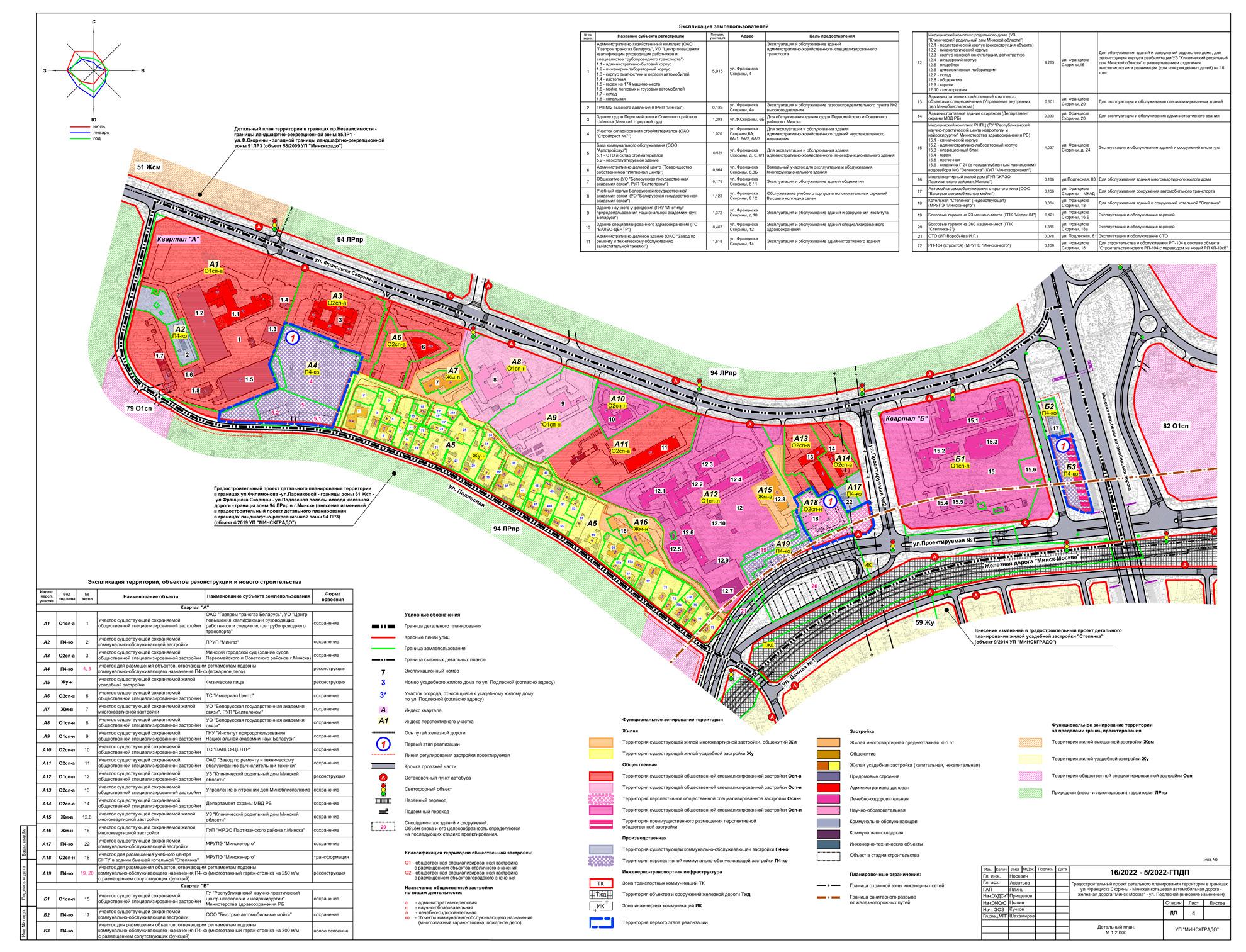
Проектируемая территория площадью 42,0 га располагается в Партизанском административном районе г.Минска, в северо-восточном секторе серединного планировочного пояса, на территории планировочного района «Староборисовский тракт» и представляет собой зону общественной специализированной застройки 79 О1 сп. Территория проектирования является частью зоны общественной застройки 79 О1 сп, на севере и юго-западе граничит с зоной природных (лесо- и лугопарковых) территорий 94 ЛРпр, на северо-западе – с зоной жилой смешанной застройки 51Жсм, на юге – с зоной жилой усадебной застройки 59 Жу, на востоке – с зоной общественной специализированной застройки 82 О1сп.
С экспозицией проекта можно ознакомиться ежедневно (кроме воскресенья) с 9-00 до 20-00, суббота с 9.00 до 13.00, в период с 18 марта 2024 г. по 1 апреля
2024 г. в фойе здания администрации Партизанского района по адресу: г.Минск,
ул. Захарова, 53 и на официальном сайте администрации part.gov.by в разделе «общественные обсуждения».
Презентация проекта будет размещена 20.03.2024 на официальном интернет-сайте администрации Партизанского района г.Минска part.gov.by в разделе «общественные обсуждения».
Замечания и (или) предложения участников общественного обсуждения принимаются в письменном и (или) электронном виде с 18 марта 2024 г. по 1 апреля 2024 г. с пометкой «общественное обсуждение» по адресу: г.Минск, ул. Захарова, 53 (каб. 315), либо на электронный адрес отдела по архитектуре и строительству администрации
Комиссия по подготовке и проведению общественных обсуждений создана распоряжением главы администрации Партизанского района г.Минска от 10.11.2022 № 2-1-3/61. Замечания и (или) предложения участников общественного обсуждения будут направлены для рассмотрения, обобщения и подведения итогов на заседание архитектурно-градостроительного Совета при главном архитекторе г.Минска.
Основные положения территориального развития_Градостроительные регламенты
Детальный план

Опорный план




